Descrizione
CASTIGLIONE DEL LAGO
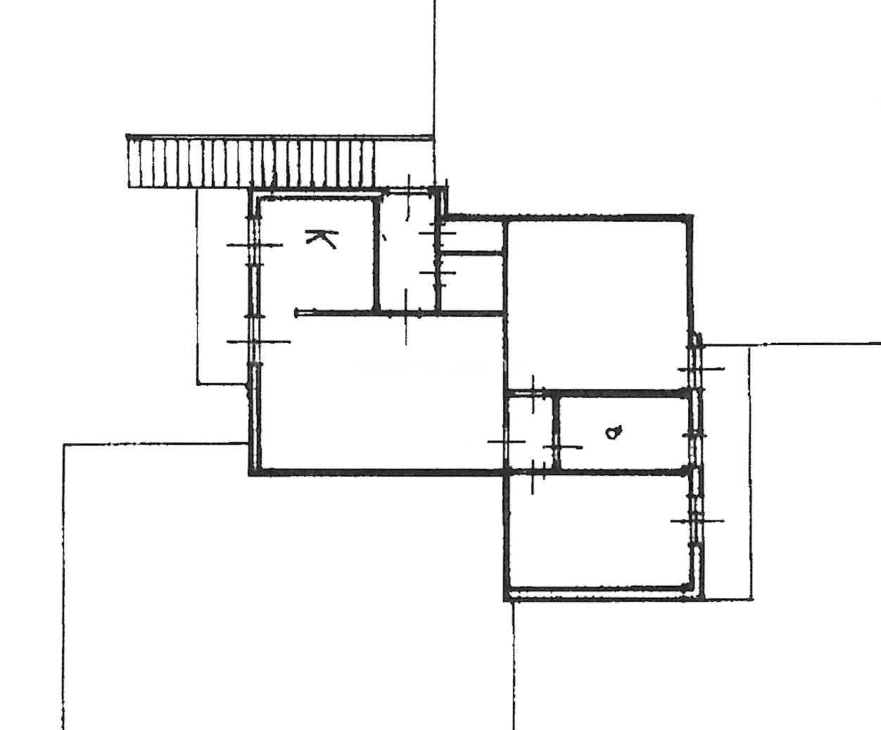
In zona centrale e vicino ai servizi, proponiamo per la vendita un appartamento posto al piano primo e con ingresso indipendente, di 90 mq circa, con terrazze e garage. Giungiamo all’ingresso dell’appartamento salendo una scala indipendente, e troviamo un disimpegno, un ampio soggiorno con camino e porta finestra con accesso ad una terrazza, una cucina comunicante con la terrazza, un disimpegno, una camera matrimoniale e una cameretta con terrazza unica, un bagno con vasca e doccia, e due ripostigli. Possibilità di creare un secondo bagno. La proprietà comprende un garage di 23 mq e una cantina posti al piano seminterrato, un piccolo giardino recintato a piano terra e una corte condominiale. L’appartamento ha una doppia esposizione ad Est e Ovest, dispone di tenda da sole motorizzata e parquet nelle camere, infissi termici, aria condizionata. L’approvvigionamento idrico è garantito da connessione con l’acquedotto comunale, dispone di riscaldamento autonomo a metano, tutte le utenze sono autonome. I costi condominiali ammontano a circa 30 € al mese. Il condominio è ben mantenuto ed è composto da n°10 unità abitative. Situato in un contesto tranquillo ma nello stesso tempo centrale, con giardini pubblici e servizi vari nelle immediate vicinanze facilmente raggiungibili a piedi. Ottima soluzione come prima o seconda casa, o come forma di investimento per affitti.
Classe Energetica: G

















































